Beschreibung
OBJEKTBESCHREIBUNG
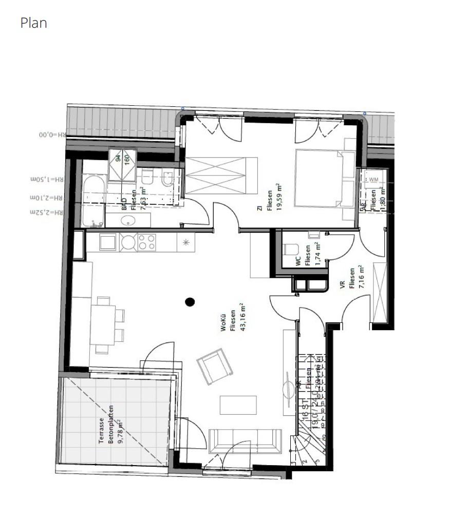
Diese hochwertig ausgestattete 2-Zimmer-Dachgeschosswohnung überzeugt durch durchdachtes Design, helle Räume und zwei großzügige Terrassen mit beeindruckendem Fernblick.
Das Neubauhaus wurde 2024 fertiggestellt und bietet modernes Wohnen in ruhiger Lage mit exzellenter Infrastruktur. Die Wohnung wird auf 10 Jahre befristet vermietet.
AUSTATTUNG
– Erstbezug – modernes Wohnkonzept mit hochwertiger Ausstattung
– Komplettküche mit Markengeräten
– Großzügiger Wohn-Essbereich mit Zugang zur Terrasse
– Schlafzimmer mit en-suite Badezimmer (Badewanne, Bidet, WC)
– Gäste-WC und 2 Abstellräume
– Fußbodenheizung und Kühlung (Erdwärme)
– Elektrische Außenjalousien, große Fensterflächen
– Terrasse ca. 10 m² + Dachterrasse ca. 50 m²
– Kellerabteil, Fahrrad- und Kinderwagenraum
– Garagenplätze im Haus optional verfügbar
– Barrierefreier Personenaufzug
LAGE
Die Wohnung liegt im beliebten 18. Bezirk, im Herzen von Gersthof – einer der begehrtesten Wohngegenden Wiens.
In wenigen Gehminuten erreichen Sie den Kutschkermarkt, die Straßenbahnlinien 9 und 40, den Bahnhof Gersthof sowie zahlreiche Einkaufsmöglichkeiten, Lokale und Grünflächen (Türkenschanzpark, Pötzleinsdorfer Schlosspark).
ECKDATEN
Wohnfläche ca. 84,02 m²
Terrassen ca. 60 m² (2 Terrassen)
Zimmer 2
Bäder 1
WCs 2
Abstellräume 2
Heizung Fußbodenheizung (Erdwärme)
Zustand Erstbezug
Baujahr 2024
Befristung 10 Jahre
Energieausweis HWB B 26,2 kWh/m²a • fGEE A+ 0,64
KOSTENÜBERSICHT
Gesamtmiete: € 2.599,– / Monat inkl. Betriebskosten und USt
Miete netto: € 2.149,61
Betriebskosten: € 213,12
USt: € 236,27
Preisaufstellung
Mieten
- Monatliche Nettomiete: € 2.599,--
- USt: 10%