Description
Property Description
The property on offer, measuring approximately 2,662 m², is located in an exclusive residential area of Penzing, in the 14th district. The property´s unique location offers a high degree of privacy, as it is secluded, at ground level, and surrounded by mature trees.
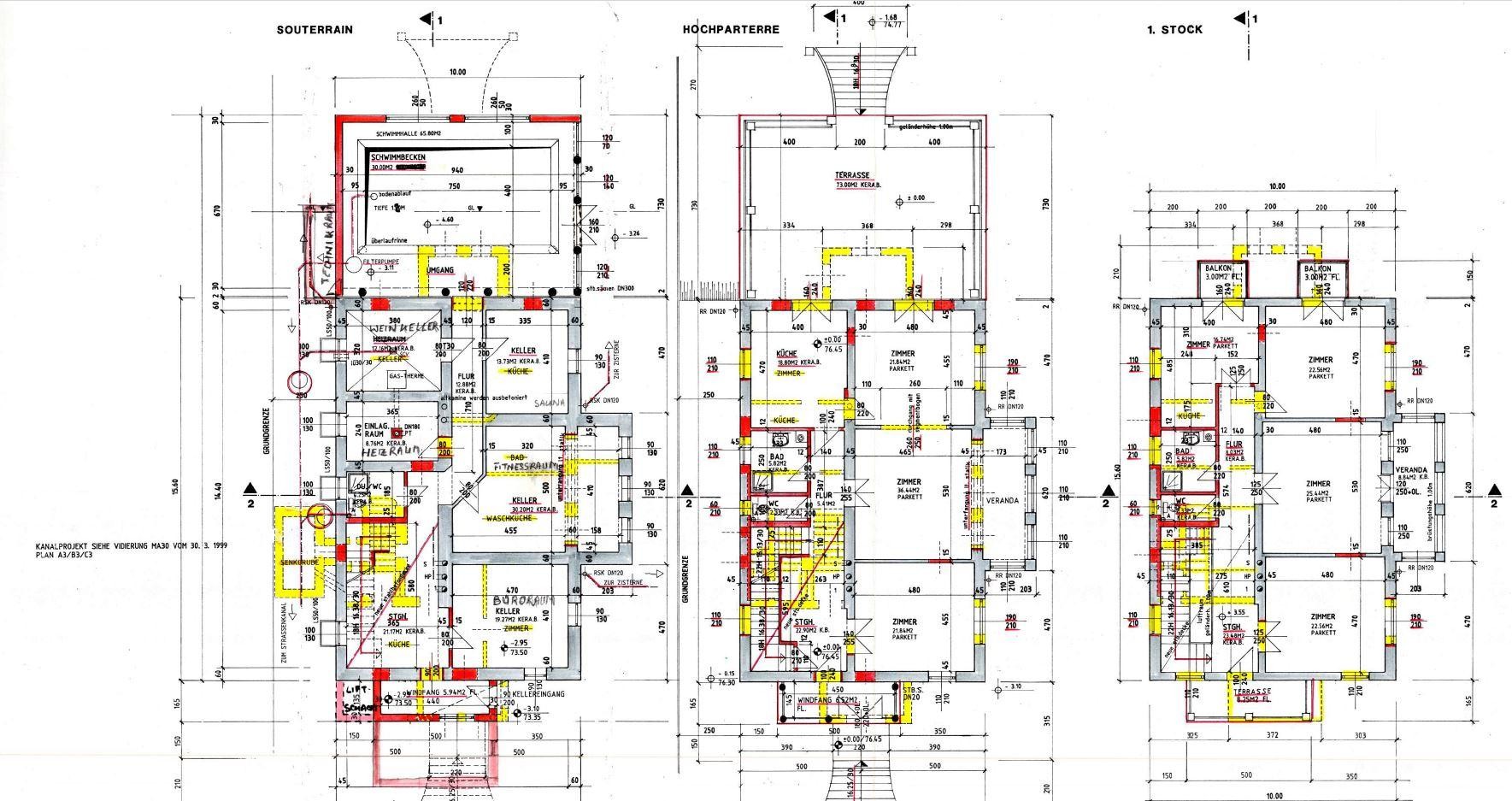
The property houses a prestigious turn-of-the-century villa, which is already partially renovated (shell) and still needs to be completed.
The basement already contains an indoor pool and sufficient space (three rooms) for a sauna, spa, and gym.
The upper floor features three bedrooms with two bathrooms and two balconies. The attic features a spacious master suite with a bathroom, wardrobe, and a small balcony.
Location
The property is located in one of Penzing´s most desirable residential areas with first-class infrastructure. The residential area offers peace and exclusivity, while shops, schools, kindergartens, and public transport are all easily accessible. The property offers excellent access to the motorway, major roads, and train station, allowing quick access to both the city center and surrounding areas.
The existing building on the property is an impressive turn-of-the-century villa. It retains numerous historic features but is in need of renovation. A comprehensive restoration could restore the property to its original splendor and combine modern living comfort with historic charm.
Price Listing
Buy
- Commission: 3% of purchase price plus 20% VAT