Description
Property Description
In one of Vienna’s most sought-after residential areas, just moments from Grinzing, an exclusive new development is being built, combining modern living comfort with premium finishes and stylish architecture.
This spacious apartment with a balcony, multiple terraces, and a private garden offers bright, airy rooms, a well-thought-out layout, and top-level living comfort. As a first occupancy, it guarantees modern living at its finest.
Completion is scheduled for 2025.
Property Highlights
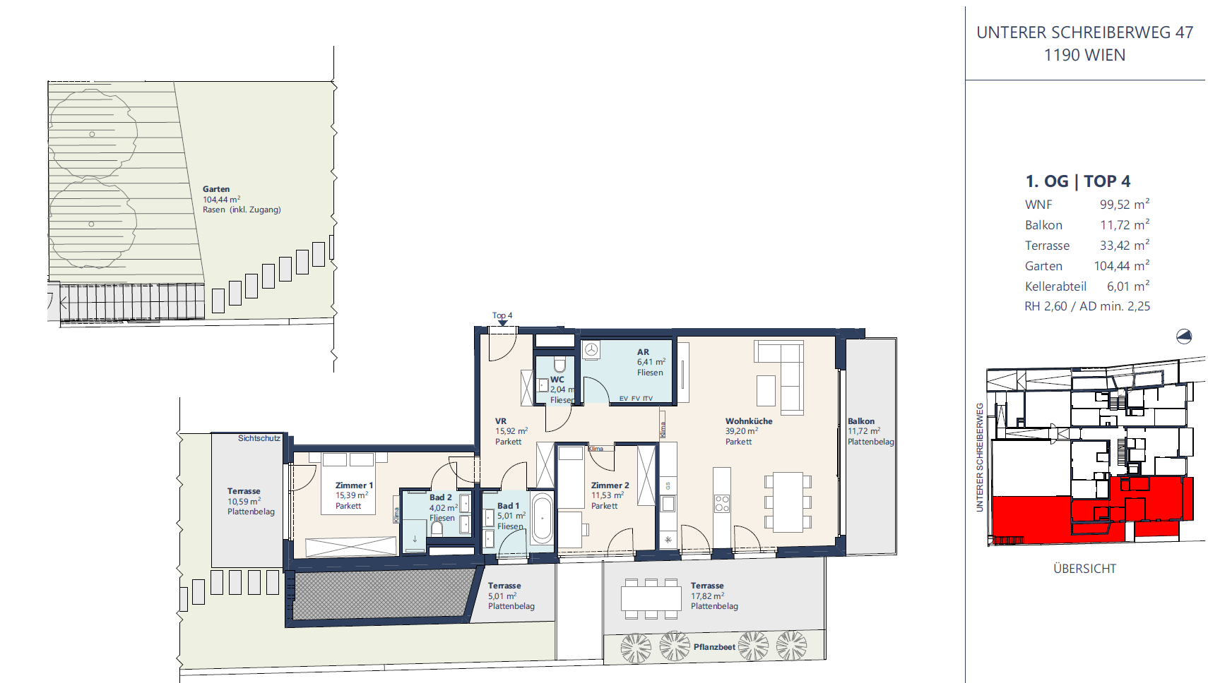
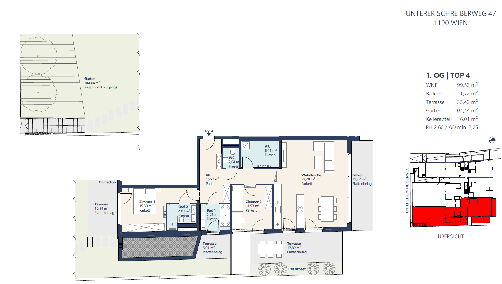
Cellar storage: 6.01 m²
Rooms: 3 (including living/kitchen area)
Bathrooms: 2 (with shower & bathtub)
Separate WC
Storage room: 6.41 m²
Ceiling height: 2.60 m (AD min. 2.25 m)
Optional garage parking space: €50,000
First occupancy / Completion: Spring 2025
Layout
Entrance hall (15.92 m²) with access to all living areas
Spacious living/kitchen area (39.20 m²) with dining space and direct access to terrace & balcony
Bedroom 1 (15.39 m²) with private terrace (10.59 m²)
Bedroom 2 (11.53 m²) – ideal as a children’s room, guest room, or home office
Bathroom 1 (5.01 m²) with bathtub
Bathroom 2 (4.02 m²) with shower
Separate WC (2.04 m²)
Storage room (6.41 m²)
Balcony & multiple terraces with garden views
Private garden (104.44 m²) with direct access
Features
High-quality parquet flooring
Underfloor heating for optimal comfort
Modern bathrooms with exclusive tiling
Large windows ensuring maximum natural light
Energy-efficient construction
Sunny outdoor areas offering plenty of privacy
Location
The apartment is located in a prime area near Grinzing, one of Vienna’s most exclusive residential addresses. Here, you enjoy the perfect combination of urban comfort and living close to nature.
Excellent transport connections (public & private)
Shops, restaurants & traditional wine taverns (Heurige) nearby
Recreation & nature: walking paths, the Vienna Woods, and vineyards at your doorstep
Schools, kindergartens, and full infrastructure within walking distance
Special Features
New-build & first occupancy – state-of-the-art living standard
Private garden & spacious terraces for the highest quality of life
Bright, modern architecture
Prime location near Grinzing
Optional garage parking space: €50,000
Completion 2025
Price Listing
Buy
- Commission: 3% of purchase price plus 20% VAT